Reinhard Ludke, S.E. | Published on 12/1/2022
Hensolt SEAONC Legacy Committee
Reinhard Ludke, S.E. - Chairman
New ENGINEER, STRUCTURE and SEAONC TECHNICAL LEADERSHIP posted to the Hensolt SEAONC Legacy website:
www.LEGACY.SEAONC.org -
CHECK IT OUT!
APPLE PARK
Steve Jobs' largest design masterpiece,
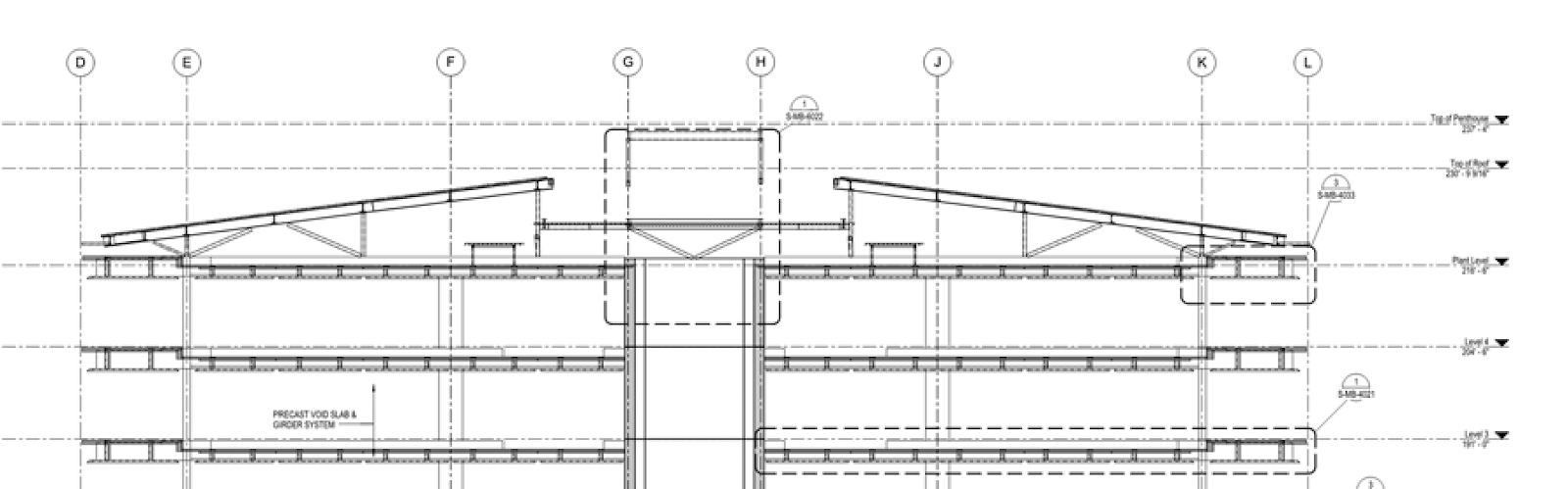
Apple Park, company headquarters, is in Cupertino, California. Apple Park is 175 acres of unique Architecture, Engineering, and Construction. Apple Park is famous for its 1,532 feet diameter, four story, curved glass façade and glass canopy building which is now known as the “spaceship”. The building is thought to be the largest precast concrete office building ever built, and its curved glass façade is one feature that contributes to the unique reputation of Apple’s flagship.
The building opened in 2017 after over seven years of planning, design and construction. Steve Jobs himself pitched the Foster + Partners Architects design to the Cupertino City Council in 2011 in order to assure Planning approval for this Silicon Valley landmark.
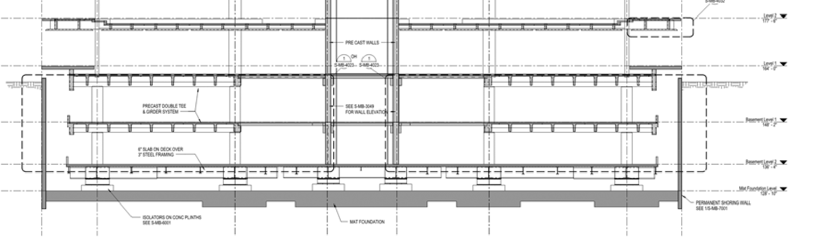
One signature framing system developed by the A/E/C team is a precast concrete voided slab floor with an integral white concrete ceiling. The building is supported on 700, seven-foot diameter, 15,000 pound, EPS Triple Friction Pendulum seismic isolators. The isolators greatly reduce the building’s horizontal seismic acceleration, but the 2,500 year return period earthquake Performance Criteria results in 1.2g vertical accelerations.
The Steve Jobs Theater — located at Apple Park in Cupertino — received a 2018 "Structural Artistry" award from the United Kingdom Institute of Structural Engineers, given to buildings which have been "transformed by the vision and skill of the structural engineer into something exceptional." The theater's above-ground pavilion is "the largest structure in the world solely supported by glass," the Institute said. Although made of carbon fiber, the roof still weighs some 80 tons. Each glass panel holding it up consists of just four layers of 12-millimeter thick plies that are the Lateral Force Resisting structure. Yes, glass shear walls?
Apple is known to take a hands-on approach to much of its corporate and retail architecture, and in fact Jobs himself is credited with many of the decisions for Apple Park, though he died in 2011 before construction could start. Apple Park’s Grand Opening was September 2017. There is little about this project that could be called usual. It is a part of the Apple way of doing things, to “think different” at every opportunity, including architecture and this engineering opportunity. “The biggest challenge was striving for perfection,” Eric Borchers says. “Apple, as a company, is known world-wide for the design and quality of all their products.” Apple Park was very much intended to be an expression of the company’s values and design standards. “In comparing all of the buildings that I have been in, Apple Park is probably the closest to perfection that you can get in a finished product,” says Borchers. “It is really beautiful. Jobs insisted that all the architectural details are perfect.”
SEISMIC ISOLATION
Seismic Isolation describes the contributions of SEAONC members to the development of seismic isolation of structures. Seismic isolation, also known as “base” isolation, is a means of protecting a structure, building or bridge, from the devastating effects of earthquake shaking. The structure is protected by “decoupling” it from the shaking ground. Practically this is achieved by supporting the structure on several specially designed elements, isolators, that are stiff vertically – hence able to support the weight of the structure without deforming – and flexible in the horizontal direction, achieving the desired “decoupling.” The idea is for the building to remain almost stationary during an earthquake as the ground moves underneath and the isolators absorb most of the motion. Relative to a similar conventionally founded structure, deformations, accelerations and demands on the lateral force-resisting system of an isolated structure are much lower.
In 1976, U.C. Berkeley Professor James Kelly, in association with CJ Derham from Malaysian Rubber Research and Development Board [MRPRA] began working on the development of natural rubber bearings for the seismic protection of buildings and bridges. Over a period of about five years, this collaboration led to a series of experimental tests, both at the component level and on entire isolated structures on the shaking table of the Earthquake Engineering Research Center (EERC) at UC Berkeley. The results from these early tests were very promising and led to the first base‐isolated building in the United States, the Foothill Communities Law and Justice Center (FCLJC), which was also the first building in the world to use isolation bearings made from high‐damping natural rubber developed for this project by MRPRA. In the early 1980’s, when
Alexander Tarics was providing Structure Engineering for construction of a new court building in Rancho Cucamonga, he persuaded San Bernardino county officials to try seismic isolation. Professor Kelly says, “Alex’s persuasiveness got this THING going.”
Two types of practical seismic isolators dominate the world-wide market for seismic isolation hardware today. SEAONC member Ron Mayes led the USA development of Elastomeric-Based Isolators with the company he started in 1980, Dynamic Isolation Systems [DIS]. Beginning in 1978, Victor Zayas, Phd. developed the Friction Pendulum Isolator and led 50 years of research, development and testing, isolator manufacture, and built the company Earthquake Protection Systems [EPS] which manufactures the isolators in Vallejo, California. The friction pendulum isolator concept is sliding occurs in a spherical dish and the motion mimics that of a pendulum. EPS is now the largest isolator manufacture and supply company in the world.
In 1986 the Base Isolation Subcommittee chaired by
Eric Elsesser of the SEAONC Seismology Committee first published a proposed Building Code for engineering and construction of base isolated structures, Tentative Seismic Isolation Design Requirements. The SEAOC Seismology Committee made further Code developments. The International Conference of Building Officials (ICBO) adopted the provisions developed by SEAOC as part of the 1991 Uniform Building Code, appearing as an Appendix to Chapter 23, Earthquake Regulations for Seismic-Isolated Structures.
The Seismic Isolation post includes a Seismic Isolated Projects Table that lists thirty (30) SEAONC Firms/Engineers base isolated structure projects starting with the first USA isolated building, Reid & Tarics, Alexander Tarics, S.E., 1984 Foothill Communities Law & Justice Center in San Bernardino, California.
Building Cross Section

Precast Slab Detail